Winkelstraat 7
5644 EK, Eindhoven
€ 595.000
k.k.
Omschrijving
- Bouwjaar 1932
- BVO 180 m²
- Soort pand Winkelruimte
Winkelstraat 7-9 Eindhoven
Zeer courant beleggingsobject met winkelruimte op de begane grond en een royale bovenwoning op de 1e en 2e verdieping.
Gelegen in actief wijkwinkelcentrum, nabij het levendige Gerardusplein.
Gemiddeld Energielabel A+.
Begane grond
De begane grond is volledig in gebruik als winkelruimte met achtergelegen magazijn. De totale frontbreedte van ca 10 meter is voorzien van een glazen pui met twee toegangsdeuren. Begane grond vloer is afgewerkt met natuurstenen vloer (travertin), stucwerk wanden en een systeemplafond met tl- en Led verlichting. Verwarming geschiedt d.m.v. radiatoren.
1e verdieping:
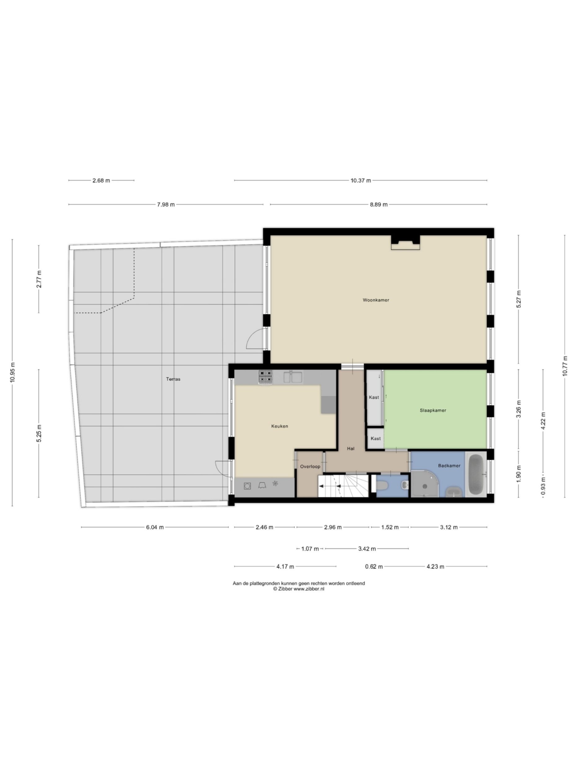
Overloop met toegang tot woonkamer, keuken, toilet, badkamer, slaapkamer en 2e verdieping d.m.v. een vaste trapopgang.
Woonkamer (doorzon) voorzien van schouw met houtkachel en afgewerkt met vloerbedekking, stucwerk wanden en een stucwerk plafond. Vanuit de woonkamer toegang tot het dakterras d.m.v. een loopdeur. Keuken voorzien van keukeninrichting in hoekopstelling, afgewerkt d.m.v. een tegelvloer, gedeeltelijk tegelwerkwanden en een decoratieplaten plafond. Vanuit de keuken toegang tot het dakterras d.m.v. een loopdeur.
Badkamer voorzien van een ligbad, douche, wastafelmeubel en designradiator. De badkamer is afgewerkt d.m.v. een tegelvloer, tegelwanden en een decoratieplaten plafond. Toilet voorzien van wandcloset en fontein, afgewerkt d.m.v. een tegelvloer, tegelwanden en een decoratieplaten plafond.
Royale slaapkamer afgewerkt d.m.v. een laminaatvloer, stucwerk/schoonmetselwerk wanden en een balkenplafond.
2e verdieping:
Vanuit de overloop heeft u toegang tot een drietal slaapkamers. De overloop dient tevens als standplaats voor de c.v. ketel en beschikt over een ruime knieschot kast. De slaapkamers zijn voorzien van een dakkapel en afgewerkt d.m.v. een laminaatvloer, stucwerkwanden en een schroten plafond.
Oppervlakte winkel: 180 m2
Oppervlakte woning: ca. 175 m2
Oppervlakte overig inpandig: ca. 79 m2
Bijzonderheden:
- Gemiddeld energielabel A+;
- Voldoende gratis parkeermogelijkheden voor de deur;
- De bovenwoningen zijn voorzien van kunststof kozijnen;
- De winkel is aan de voorzijde voorzien van aluminium kozijnen.
Het geheel wordt geleverd "as is where is", vrij van huur en gebruik.
Zeer courant beleggingsobject met winkelruimte op de begane grond en een royale bovenwoning op de 1e en 2e verdieping.
Gelegen in actief wijkwinkelcentrum, nabij het levendige Gerardusplein.
Gemiddeld Energielabel A+.
Begane grond
De begane grond is volledig in gebruik als winkelruimte met achtergelegen magazijn. De totale frontbreedte van ca 10 meter is voorzien van een glazen pui met twee toegangsdeuren. Begane grond vloer is afgewerkt met natuurstenen vloer (travertin), stucwerk wanden en een systeemplafond met tl- en Led verlichting. Verwarming geschiedt d.m.v. radiatoren.
1e verdieping:
Overloop met toegang tot woonkamer, keuken, toilet, badkamer, slaapkamer en 2e verdieping d.m.v. een vaste trapopgang.
Woonkamer (doorzon) voorzien van schouw met houtkachel en afgewerkt met vloerbedekking, stucwerk wanden en een stucwerk plafond. Vanuit de woonkamer toegang tot het dakterras d.m.v. een loopdeur. Keuken voorzien van keukeninrichting in hoekopstelling, afgewerkt d.m.v. een tegelvloer, gedeeltelijk tegelwerkwanden en een decoratieplaten plafond. Vanuit de keuken toegang tot het dakterras d.m.v. een loopdeur.
Badkamer voorzien van een ligbad, douche, wastafelmeubel en designradiator. De badkamer is afgewerkt d.m.v. een tegelvloer, tegelwanden en een decoratieplaten plafond. Toilet voorzien van wandcloset en fontein, afgewerkt d.m.v. een tegelvloer, tegelwanden en een decoratieplaten plafond.
Royale slaapkamer afgewerkt d.m.v. een laminaatvloer, stucwerk/schoonmetselwerk wanden en een balkenplafond.
2e verdieping:
Vanuit de overloop heeft u toegang tot een drietal slaapkamers. De overloop dient tevens als standplaats voor de c.v. ketel en beschikt over een ruime knieschot kast. De slaapkamers zijn voorzien van een dakkapel en afgewerkt d.m.v. een laminaatvloer, stucwerkwanden en een schroten plafond.
Oppervlakte winkel: 180 m2
Oppervlakte woning: ca. 175 m2
Oppervlakte overig inpandig: ca. 79 m2
Bijzonderheden:
- Gemiddeld energielabel A+;
- Voldoende gratis parkeermogelijkheden voor de deur;
- De bovenwoningen zijn voorzien van kunststof kozijnen;
- De winkel is aan de voorzijde voorzien van aluminium kozijnen.
Het geheel wordt geleverd "as is where is", vrij van huur en gebruik.
Kenmerken
Overdracht
| Status | Onder bod |
| Vraagprijs | € 595.000 k.k. |
Bouwvorm
| Soort Woning | Bestaande bouw |
| Bouwjaar | 1932 |
Indeling
| Soort Object | Winkelruimte |
| Totale Opervlakte | 180 m² |
| Perceeloppervlakte | 195 m² |
Energie
| Energieklasse | A p |
| Energie Einddatum | 2035-08-11 |
Diverse
| Aantal Verdiepingen | 1 |
| Woonruimte | Geen woonruimte aanwezig |
| Ligging | Wijkwinkelcentrum |
| Onderhoud Binnen | Redelijk |
| Onderhoud Buiten | Redelijk tot goed |
| Ter Overname | Nee |
| Horeca Toegestaan | Ja |
| Detailhandel | Ja |
| Branchebeperking | Nee |
| Bijdrage Winkeliersvereniging | Nee |
| Publieksgerichte Dienstverlening | Ja |