Elisabethplaats 30
5421 LC, Gemert
€ 685.000
k.k.
€ 2.800
p/m
Interesse in dit object?
-
Plan een bezichtiging
Elisabethplaats 305421 LC, Gemert
Neem contact op
Omschrijving
- Bouwjaar 1905
- BVO 239 m²
- Soort pand Kantoorruimte
Elisabethplaats 30, Gemert
Op een markante locatie bevindt zich dit multifunctionele pand, uitstekend geschikt voor zowel zakelijk en/of woongebruik.
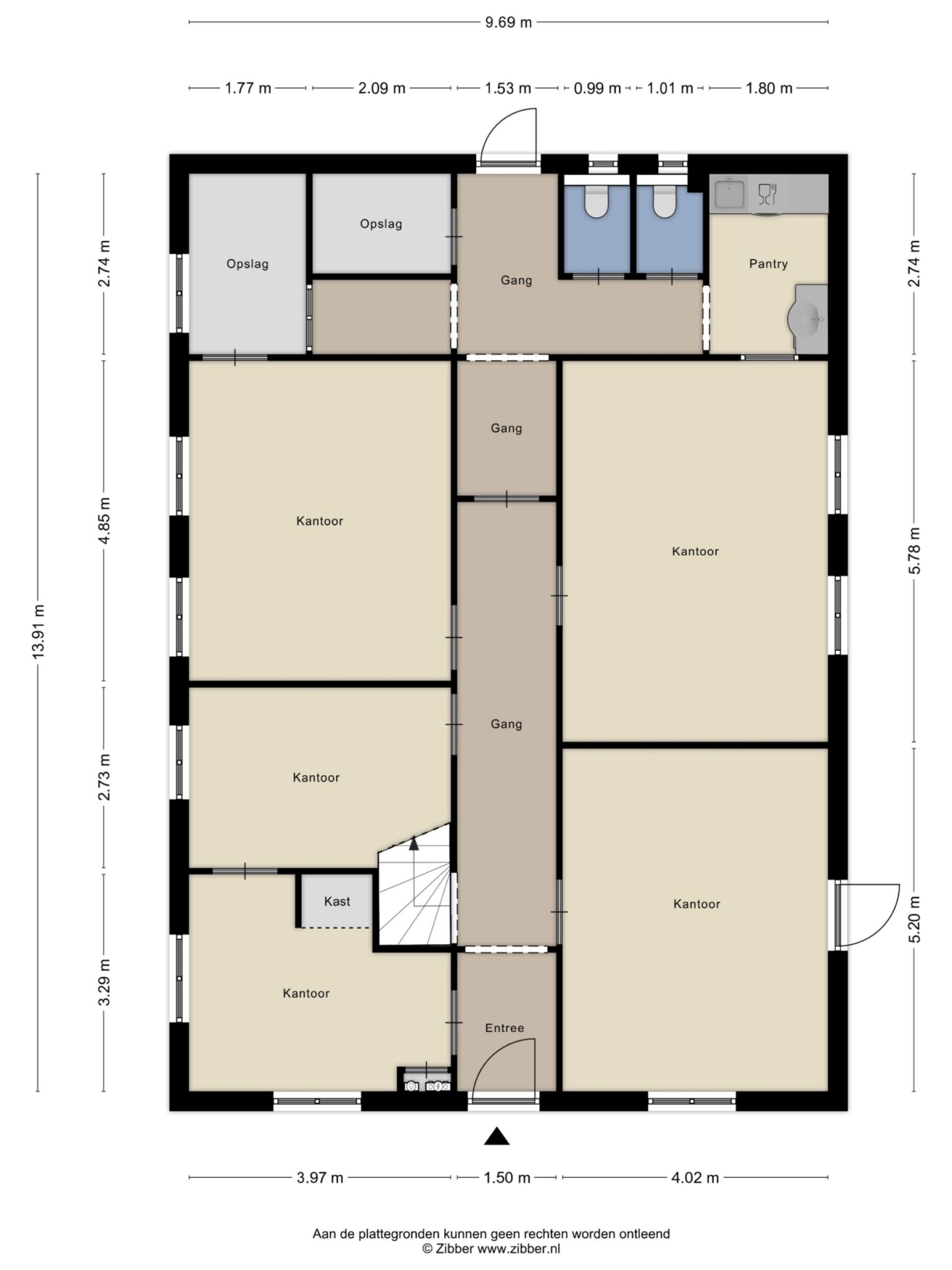
Begane grond
De entree aan de kop van het gebouw geeft toegang tot een tochtvrije vestibule met aansluitend een kantoor-/spreekkamer. Vanuit hier bereikt u de centrale hal met een praktische en efficiënte indeling. Aan deze hal liggen vier kantoorruimten, waarvan drie zeer royaal en één met directe toegang naar buiten. De indeling is flexibel, waardoor eenvoudig grotere kantoor- of commerciële ruimten zijn te realiseren.
De begane grond is hoogwaardig afgewerkt met originele natuurstenen plavuizen, gladde wanden, hoge akoestische plafonds en moderne LED-verlichting. Verder zijn er een moderne dames- en herentoiletgroep, een keuken, twee bergruimten en een achterdeur aanwezig.
Eerste etage
Via een vaste trap bereikt u de eerste verdieping met een indrukwekkende open structuur tot in de nok, waarbij de originele spanten en het takelrad zichtbaar zijn gebleven. Deze verdieping beschikt over een royale presentatie-/kantineruimte met luxe keuken, meerdere bergruimten, een separate kantoorruimte en een deur naar een bordes met vluchttrap.
De eerste etage is zodanig voorbereid dat met enkele eenvoudige aanpassingen een comfortabele woonverdieping kan worden gerealiseerd met meerdere slaapkamers, een badkamer en een inpandig dakterras (loggia).
Ligging:
Goed bereikbaar gelegen in het hart van Gemert op een markante zichtlocatie met volop parkeergelegenheid rondom.
Bestemming:
De bestemming Centrum - A betreft een zeer ruime bestemming die onderhavige locatie zeer breed inzetbaar maakt.
Kenmerken:
* Bouwjaar: 1905-1906;
* Gemeentelijk monument;
* Zeer hoogwaardig afgewerkt;
* Vakkundig gerestaureerd met behoud van authentieke elementen;
* Door brede bestemming multifunctioneel inzetbaar;
* Ook fysiek gezien multifunctioneel inzetbaar;
* Oppervlakte begane grond: 135 m²
* Oppervlakte eerste etage: 104 m²
* Perceeloppervlakte: 160 m²;
* Levering: In overleg;
* BTW van toepassing: Ja.
Ondanks dat deze publicatie met de grootst mogelijke zorgvuldigheid is samengesteld is Van Uffelen Bedrijfsmakelaars niet aansprakelijk te stellen voor onjuiste of onvolledige informatie die in deze publicatie vermeld staan. Aan deze gegevens kunnen geen rechten worden ontleend.
Op een markante locatie bevindt zich dit multifunctionele pand, uitstekend geschikt voor zowel zakelijk en/of woongebruik.
Begane grond
De entree aan de kop van het gebouw geeft toegang tot een tochtvrije vestibule met aansluitend een kantoor-/spreekkamer. Vanuit hier bereikt u de centrale hal met een praktische en efficiënte indeling. Aan deze hal liggen vier kantoorruimten, waarvan drie zeer royaal en één met directe toegang naar buiten. De indeling is flexibel, waardoor eenvoudig grotere kantoor- of commerciële ruimten zijn te realiseren.
De begane grond is hoogwaardig afgewerkt met originele natuurstenen plavuizen, gladde wanden, hoge akoestische plafonds en moderne LED-verlichting. Verder zijn er een moderne dames- en herentoiletgroep, een keuken, twee bergruimten en een achterdeur aanwezig.
Eerste etage
Via een vaste trap bereikt u de eerste verdieping met een indrukwekkende open structuur tot in de nok, waarbij de originele spanten en het takelrad zichtbaar zijn gebleven. Deze verdieping beschikt over een royale presentatie-/kantineruimte met luxe keuken, meerdere bergruimten, een separate kantoorruimte en een deur naar een bordes met vluchttrap.
De eerste etage is zodanig voorbereid dat met enkele eenvoudige aanpassingen een comfortabele woonverdieping kan worden gerealiseerd met meerdere slaapkamers, een badkamer en een inpandig dakterras (loggia).
Ligging:
Goed bereikbaar gelegen in het hart van Gemert op een markante zichtlocatie met volop parkeergelegenheid rondom.
Bestemming:
De bestemming Centrum - A betreft een zeer ruime bestemming die onderhavige locatie zeer breed inzetbaar maakt.
Kenmerken:
* Bouwjaar: 1905-1906;
* Gemeentelijk monument;
* Zeer hoogwaardig afgewerkt;
* Vakkundig gerestaureerd met behoud van authentieke elementen;
* Door brede bestemming multifunctioneel inzetbaar;
* Ook fysiek gezien multifunctioneel inzetbaar;
* Oppervlakte begane grond: 135 m²
* Oppervlakte eerste etage: 104 m²
* Perceeloppervlakte: 160 m²;
* Levering: In overleg;
* BTW van toepassing: Ja.
Ondanks dat deze publicatie met de grootst mogelijke zorgvuldigheid is samengesteld is Van Uffelen Bedrijfsmakelaars niet aansprakelijk te stellen voor onjuiste of onvolledige informatie die in deze publicatie vermeld staan. Aan deze gegevens kunnen geen rechten worden ontleend.
Informatie downloaden van Elisabethplaats 30
Kenmerken
Overdracht
| Status | Beschikbaar |
| Vraagprijs | € 685.000 k.k. |
| Huurprijs | € 2.800 p/m |
| Huurprijs Type | Excl btw |
Bouwvorm
| Soort Woning | Bestaande bouw |
| Bouwjaar | 1905 |
Indeling
| Soort Object | Kantoorruimte |
| Totale Opervlakte | 239 m² |
| Perceeloppervlakte | 160 m² |
Energie
| Energieklasse | F |
| Energie Einddatum | 2034-05-08 |
Diverse
| In Units Vanaf | 7 m² |
| Aantal Verdiepingen | 2 |
| Woonruimte | Woonruimte aanwezig |
| Ligging | In woonwijk |
| Onderhoud Binnen | Goed |
| Onderhoud Buiten | Goed |
| Ter Overname | Nee |
| Horeca Toegestaan | Nee |
| Detailhandel | Nee |
| Branchebeperking | Nee |
| Bijdrage Winkeliersvereniging | Nee |
| Publieksgerichte Dienstverlening | Nee |