Winkelstraat 5
5644 EK, Eindhoven
€ 1.199.000
k.k.
Omschrijving
- Bouwjaar 1932
- BVO 420 m²
- Soort pand Winkelruimte
Winkelstraat 5 - 11 Eindhoven
Zeer courant beleggingsobject met winkelruimte op de begane grond en 2 appartementen op de 1e verdieping.
Het geheel wordt geleverd "as is where is", vrij van huur en gebruik.
Gelegen in actief wijkwinkelcentrum, nabij het levendige Gerardusplein.
Gemiddeld Energielabel A+.
Begane grond
De begane grond is volledig in gebruik als winkelruimte met achtergelegen magazijn. De totale frontbreedte van ca. 25 meter is voorzien van een glazen pui met 3 toegangsdeuren. Begane grond vloer is afgewerkt met natuurstenen vloer (travertin), stucwerk wanden en een systeemplafond met tl-verlichting. Verwarming geschiedt d.m.v. radiatoren en een warmtegordijn. Koeling d.m.v. airconditioning.
Bovenwoningen
Onderverdeeld in 2 separaat via de winkel toegankelijke bovenwoningen.
Bovenwoning 1
1e verdieping:
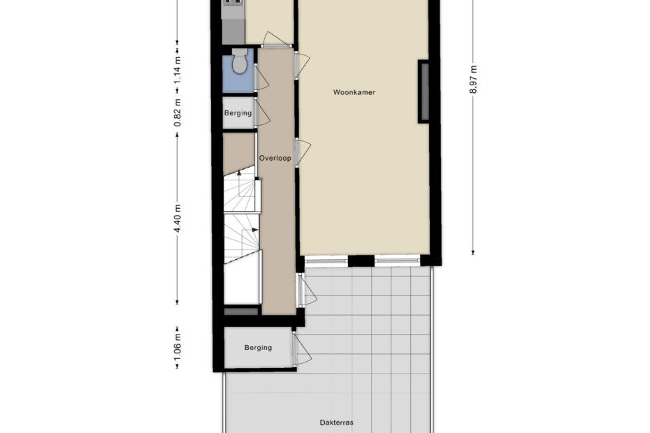
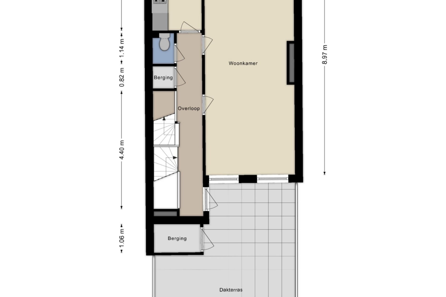
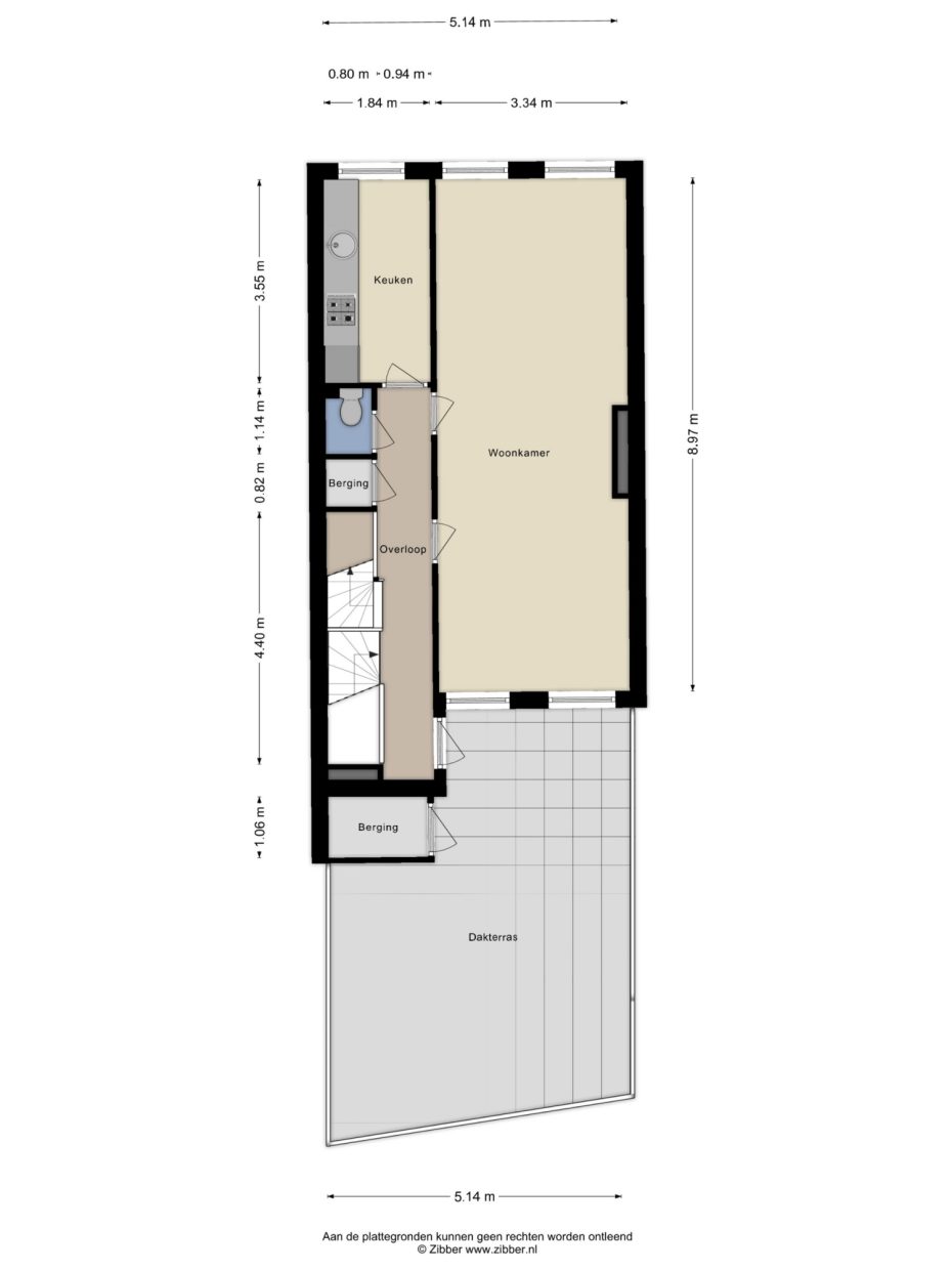
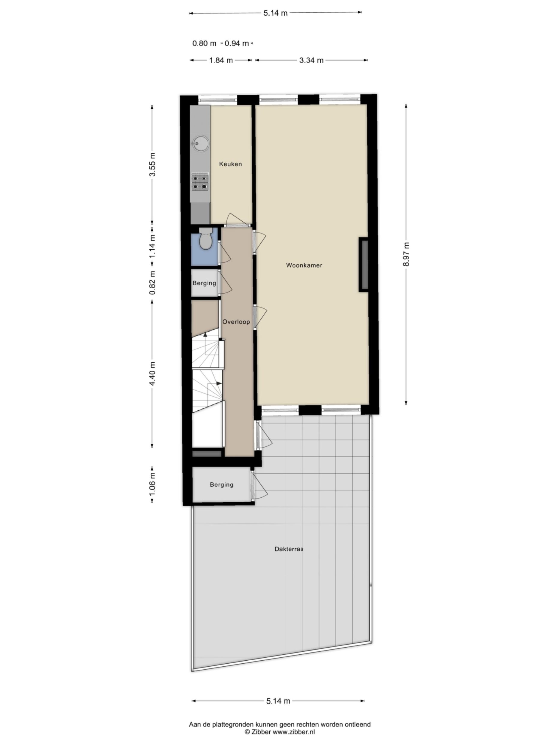
Overloop met toegang tot dakterras, woonkamer, keuken, toilet en 2e verdieping d.m.v. een vaste trapopgang.
Woonkamer (doorzon), met laminaatvloer, stucwerk wanden en een stucwerk plafond. Keuken met eenvoudige keukeninrichting, laminaatvloer, stucwerk wanden met lambrisering en een schrotenplafond. Separaat toegankelijk toilet met tegelvloer, gedeeltelijk tegelwerkwanden en een schrotenplafond.
Dakterras (op het zuiden gesitueerd) voorzien van waterdoorlatende betontegels.
2e verdieping
Overloop met toegang tot slaapkamer, zolderkamer en badkamer. Slaapkamer voorzien van dakkapel en afgewerkt met een laminaatvloer, stucwerkwanden en een decoratie plafond. Eventueel onder te verdelen in 2 slaapkamers.
Badkamer voorzien van een inloopdouche en een vaste wastafel, afgewerkt met een granitovloer, tegelwerk wanden en een stucwerk plafond.
Zolderkamer met laminaatvloer dient tevens als standplaats voor de c.v. ketel en omvormer voor de zonnepanelen.
Oppervlakte woning: ca. 85 m2
Oppervlakte overig inpandig: ca. 32 m2
Bovenwoning 2
1e verdieping:
Overloop met toegang tot woonkamer, keuken, toilet, badkamer, slaapkamer en 2e verdieping d.m.v. een vaste trapopgang.
Woonkamer (doorzon) voorzien van schouw met houtkachel en afgewerkt met vloerbedekking, stucwerk wanden en een stucwerk plafond. Vanuit de woonkamer toegang tot het dakterras d.m.v. een loopdeur. Keuken voorzien van keukeninrichting in hoekopstelling, afgewerkt d.m.v. een tegelvloer, gedeeltelijk tegelwerkwanden en een decoratieplaten plafond. Vanuit de keuken toegang tot het dakterras d.m.v. een loopdeur.
Badkamer voorzien van een ligbad, douche, wastafelmeubel en designradiator. De badkamer is afgewerkt d.m.v. een tegelvloer, tegelwanden en een decoratieplaten plafond. Toilet voorzien van wandcloset en fontein, afgewerkt d.m.v. een tegelvloer, tegelwanden en een decoratieplaten plafond.
Royale slaapkamer afgewerkt d.m.v. een laminaatvloer, stucwerk/schoonmetselwerk wanden en een balkenplafond.
2e verdieping:
Vanuit de overloop heeft u toegang tot een drietal slaapkamers. De overloop dient tevens als standplaats voor de c.v. ketel en beschikt over een ruime knieschot kast. De slaapkamers zijn voorzien van een dakkapel en afgewerkt d.m.v. een laminaatvloer, stucwerkwanden en een schroten plafond.
Oppervlakte woning: ca. 175 m2
Oppervlakte overig inpandig: ca. 79 m2
Bijzonderheden:
- Gemiddeld energielabel A+;
- Voldoende gratis parkeermogelijkheden voor de deur;
- Airconditioning aanwezig in de winkel;
- Zonnepanelen (23 stuks);
- De bovenwoningen zijn voorzien van kunststof kozijnen;
- Bovenwoning 1 is gelegen boven Winkelstraat 5;
- Bovenwoning 2 is gelegen boven Winkelstraat 7-9;
- Het gedeelte van de winkel met huisnummer Winkelstraat 11 betreft een appartementsrecht.
Zeer courant beleggingsobject met winkelruimte op de begane grond en 2 appartementen op de 1e verdieping.
Het geheel wordt geleverd "as is where is", vrij van huur en gebruik.
Gelegen in actief wijkwinkelcentrum, nabij het levendige Gerardusplein.
Gemiddeld Energielabel A+.
Begane grond
De begane grond is volledig in gebruik als winkelruimte met achtergelegen magazijn. De totale frontbreedte van ca. 25 meter is voorzien van een glazen pui met 3 toegangsdeuren. Begane grond vloer is afgewerkt met natuurstenen vloer (travertin), stucwerk wanden en een systeemplafond met tl-verlichting. Verwarming geschiedt d.m.v. radiatoren en een warmtegordijn. Koeling d.m.v. airconditioning.
Bovenwoningen
Onderverdeeld in 2 separaat via de winkel toegankelijke bovenwoningen.
Bovenwoning 1
1e verdieping:
Overloop met toegang tot dakterras, woonkamer, keuken, toilet en 2e verdieping d.m.v. een vaste trapopgang.
Woonkamer (doorzon), met laminaatvloer, stucwerk wanden en een stucwerk plafond. Keuken met eenvoudige keukeninrichting, laminaatvloer, stucwerk wanden met lambrisering en een schrotenplafond. Separaat toegankelijk toilet met tegelvloer, gedeeltelijk tegelwerkwanden en een schrotenplafond.
Dakterras (op het zuiden gesitueerd) voorzien van waterdoorlatende betontegels.
2e verdieping
Overloop met toegang tot slaapkamer, zolderkamer en badkamer. Slaapkamer voorzien van dakkapel en afgewerkt met een laminaatvloer, stucwerkwanden en een decoratie plafond. Eventueel onder te verdelen in 2 slaapkamers.
Badkamer voorzien van een inloopdouche en een vaste wastafel, afgewerkt met een granitovloer, tegelwerk wanden en een stucwerk plafond.
Zolderkamer met laminaatvloer dient tevens als standplaats voor de c.v. ketel en omvormer voor de zonnepanelen.
Oppervlakte woning: ca. 85 m2
Oppervlakte overig inpandig: ca. 32 m2
Bovenwoning 2
1e verdieping:
Overloop met toegang tot woonkamer, keuken, toilet, badkamer, slaapkamer en 2e verdieping d.m.v. een vaste trapopgang.
Woonkamer (doorzon) voorzien van schouw met houtkachel en afgewerkt met vloerbedekking, stucwerk wanden en een stucwerk plafond. Vanuit de woonkamer toegang tot het dakterras d.m.v. een loopdeur. Keuken voorzien van keukeninrichting in hoekopstelling, afgewerkt d.m.v. een tegelvloer, gedeeltelijk tegelwerkwanden en een decoratieplaten plafond. Vanuit de keuken toegang tot het dakterras d.m.v. een loopdeur.
Badkamer voorzien van een ligbad, douche, wastafelmeubel en designradiator. De badkamer is afgewerkt d.m.v. een tegelvloer, tegelwanden en een decoratieplaten plafond. Toilet voorzien van wandcloset en fontein, afgewerkt d.m.v. een tegelvloer, tegelwanden en een decoratieplaten plafond.
Royale slaapkamer afgewerkt d.m.v. een laminaatvloer, stucwerk/schoonmetselwerk wanden en een balkenplafond.
2e verdieping:
Vanuit de overloop heeft u toegang tot een drietal slaapkamers. De overloop dient tevens als standplaats voor de c.v. ketel en beschikt over een ruime knieschot kast. De slaapkamers zijn voorzien van een dakkapel en afgewerkt d.m.v. een laminaatvloer, stucwerkwanden en een schroten plafond.
Oppervlakte woning: ca. 175 m2
Oppervlakte overig inpandig: ca. 79 m2
Bijzonderheden:
- Gemiddeld energielabel A+;
- Voldoende gratis parkeermogelijkheden voor de deur;
- Airconditioning aanwezig in de winkel;
- Zonnepanelen (23 stuks);
- De bovenwoningen zijn voorzien van kunststof kozijnen;
- Bovenwoning 1 is gelegen boven Winkelstraat 5;
- Bovenwoning 2 is gelegen boven Winkelstraat 7-9;
- Het gedeelte van de winkel met huisnummer Winkelstraat 11 betreft een appartementsrecht.
Informatie downloaden van Winkelstraat 5
Kenmerken
Overdracht
| Status | Onder bod |
| Vraagprijs | € 1.199.000 k.k. |
Bouwvorm
| Soort Woning | Bestaande bouw |
| Bouwjaar | 1932 |
Indeling
| Soort Object | Winkelruimte |
| Totale Opervlakte | 420 m² |
| Perceeloppervlakte | 291 m² |
Energie
| Energieklasse | A p |
| Energie Einddatum | 2035-08-11 |
Diverse
| Aantal Verdiepingen | 1 |
| Woonruimte | Woonruimte aanwezig |
| Ligging | Wijkwinkelcentrum |
| Onderhoud Binnen | Redelijk |
| Onderhoud Buiten | Redelijk tot goed |
| Ter Overname | Nee |
| Horeca Toegestaan | Nee |
| Detailhandel | Ja |
| Branchebeperking | Nee |
| Bijdrage Winkeliersvereniging | Nee |
| Publieksgerichte Dienstverlening | Ja |