Brussellaan 2E
5628 TC, Eindhoven
€ 16.500
p/j
Interesse in dit object?
-
Plan een bezichtiging
Brussellaan 2E5628 TC, Eindhoven
Neem contact op

Omschrijving
- Bouwjaar 1986
- BVO 104 m²
- Soort pand Winkelruimte
Brussellaan 2e, 5628 TC Eindhoven
Een representatieve showroom / bedrijfsruimte voorzien van centrale verwarming en een afzuigventilatiesysteem, gelegen op een gewilde locatie aan de rand van het kleinschalige industrieterrein De Tempel. De omgeving biedt een mix van bedrijvigheid en uitstekende bereikbaarheid dankzij de directe ligging nabij uitvalswegen en voorzieningen.
Objectinformatie
Oppervlakte showroom / bedrijfsruimte: ca. 104 m²
Oppervlakte perceel: 139 m²
Aanvaarding: in overleg
Huurprijs: € 16.500,-- per jaar, excl. BTW
Omgevingsfactoren
De locatie aan de Brussellaan is uitstekend bereikbaar via de Kennedylaan, met directe verbindingen naar de A2 en A58. Ook het centrum van Eindhoven en de binnenring liggen op korte afstand. In de omgeving zijn diverse toeleveringsbedrijven en dienstverleners gevestigd, wat bijdraagt aan een levendige en professionele uitstraling.
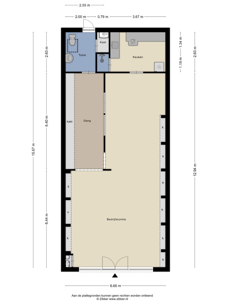
Indeling
- Entree met meterkast.
- Showroom / kantoorruimte met vloerbedekking, systeemplafond met ingebouwde verlichting, afzuigventilatiesysteem en kabelgoten.
- Kitchenette voorzien van keukenblok, opbergruimte, laminaatvloer en systeemplafond.
- Separate douchegelegenheid / bergruimte met opstelling CV-ketel.
- Gedeeltelijk betegelde toiletruimte met staand toilet, wastafel en kastruimte.
- Achteruitgang / nooduitgang aan de achterzijde van het pand.
Bijzonderheden
- De huidige indeling is flexibel aan te passen aan de wensen van de huurder.
- Gelegen aan een brede straat met representatieve uitstraling.
- Voorzien van C.V.-installatie, ventilatiesysteem en voldoende daglichttoetreding.
Conditie en voorwaarden
Huurtermijn: bij voorkeur 5 jaren met verlengingsmogelijkheid van 5 optiejaren.
Indexering: jaarlijks, voor het eerst één jaar na huuringangsdatum, op basis van de wijziging van het consumentenprijsindexcijfer (CPI, reeks CPI-werknemers laag, 2006 = 100) gepubliceerd door het CBS. De huurprijs zal nooit lager zijn dan de huurprijs van het voorgaande jaar.
Huurbetaling: per maand vooruit.
BTW: de huurprijs wordt vermeerderd met BTW.
Opzegtermijn: 6 maanden voorafgaand aan de expiratiedatum, wederzijds.
Zekerheidsstelling: doorlopende bankgarantie ter grootte van 3 maanden huur inclusief BTW.
Exoneratieclausule
Aan deze brochure kunnen geen rechten worden ontleend. Alle gegevens, tekeningen en afmetingen zijn met zorg samengesteld, maar dienen ter indicatie. Wij aanvaarden geen aansprakelijkheid voor eventuele onjuistheden en/of onvolledigheden in de vermelde informatie. Huurder wordt geacht de verstrekte gegevens zelfstandig te verifiëren.
Een representatieve showroom / bedrijfsruimte voorzien van centrale verwarming en een afzuigventilatiesysteem, gelegen op een gewilde locatie aan de rand van het kleinschalige industrieterrein De Tempel. De omgeving biedt een mix van bedrijvigheid en uitstekende bereikbaarheid dankzij de directe ligging nabij uitvalswegen en voorzieningen.
Objectinformatie
Oppervlakte showroom / bedrijfsruimte: ca. 104 m²
Oppervlakte perceel: 139 m²
Aanvaarding: in overleg
Huurprijs: € 16.500,-- per jaar, excl. BTW
Omgevingsfactoren
De locatie aan de Brussellaan is uitstekend bereikbaar via de Kennedylaan, met directe verbindingen naar de A2 en A58. Ook het centrum van Eindhoven en de binnenring liggen op korte afstand. In de omgeving zijn diverse toeleveringsbedrijven en dienstverleners gevestigd, wat bijdraagt aan een levendige en professionele uitstraling.
Indeling
- Entree met meterkast.
- Showroom / kantoorruimte met vloerbedekking, systeemplafond met ingebouwde verlichting, afzuigventilatiesysteem en kabelgoten.
- Kitchenette voorzien van keukenblok, opbergruimte, laminaatvloer en systeemplafond.
- Separate douchegelegenheid / bergruimte met opstelling CV-ketel.
- Gedeeltelijk betegelde toiletruimte met staand toilet, wastafel en kastruimte.
- Achteruitgang / nooduitgang aan de achterzijde van het pand.
Bijzonderheden
- De huidige indeling is flexibel aan te passen aan de wensen van de huurder.
- Gelegen aan een brede straat met representatieve uitstraling.
- Voorzien van C.V.-installatie, ventilatiesysteem en voldoende daglichttoetreding.
Conditie en voorwaarden
Huurtermijn: bij voorkeur 5 jaren met verlengingsmogelijkheid van 5 optiejaren.
Indexering: jaarlijks, voor het eerst één jaar na huuringangsdatum, op basis van de wijziging van het consumentenprijsindexcijfer (CPI, reeks CPI-werknemers laag, 2006 = 100) gepubliceerd door het CBS. De huurprijs zal nooit lager zijn dan de huurprijs van het voorgaande jaar.
Huurbetaling: per maand vooruit.
BTW: de huurprijs wordt vermeerderd met BTW.
Opzegtermijn: 6 maanden voorafgaand aan de expiratiedatum, wederzijds.
Zekerheidsstelling: doorlopende bankgarantie ter grootte van 3 maanden huur inclusief BTW.
Exoneratieclausule
Aan deze brochure kunnen geen rechten worden ontleend. Alle gegevens, tekeningen en afmetingen zijn met zorg samengesteld, maar dienen ter indicatie. Wij aanvaarden geen aansprakelijkheid voor eventuele onjuistheden en/of onvolledigheden in de vermelde informatie. Huurder wordt geacht de verstrekte gegevens zelfstandig te verifiëren.

Informatie downloaden van Brussellaan 2E
Kenmerken
Overdracht
Status | Beschikbaar |
Huurprijs | € 16.500 p/j |
Huurprijs Type | Excl btw |
Bouwvorm
Soort Woning | Bestaande bouw |
Bouwjaar | 1986 |
Indeling
Soort Object | Winkelruimte |
Totale Opervlakte | 104 m² |
Perceeloppervlakte | 139 m² |
Energie
Energieklasse | A |
Energie Einddatum | 2028-12-20 |
Diverse
In Units Vanaf | 104 m² |
Aantal Verdiepingen | 1 |
Woonruimte | Geen woonruimte aanwezig |
Ligging | Bedrijventerrein, in woonwijk |
Onderhoud Binnen | Goed |
Onderhoud Buiten | Goed |
Ter Overname | Nee |
Horeca Toegestaan | Nee |
Detailhandel | Ja |
Branchebeperking | Nee |
Bijdrage Winkeliersvereniging | Nee |
Publieksgerichte Dienstverlening | Ja |